Cecil B. Moore Recreation Center
Client
Rebuild Philadelphia
Category
Civic/Cultural

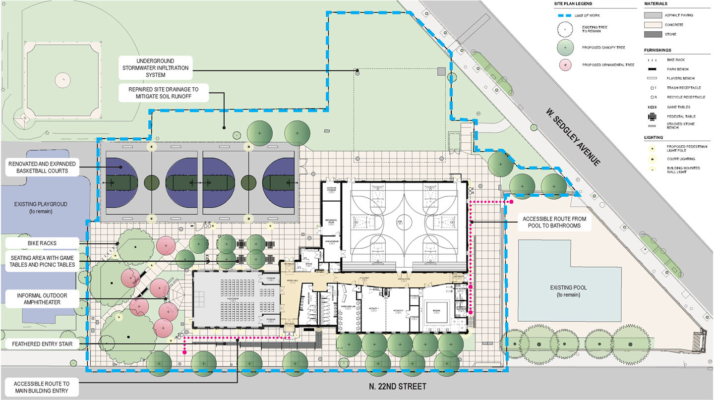
Located in the Strawberry Mansion section of North Philadelphia, the existing Cecil B. Moore Recreation Center (CBM) incorporates an auditorium, gymnasiums, public computing center, weight room, locker rooms, multipurpose spaces, offices, mechanical and storage spaces. Amenities on the 7.3-acre site include playground equipment, football/soccer fields, basketball and tennis courts, volleyball courts, and a swimming pool.

Following a condition assessment by KMA in August 2021 that identified building and site deficiencies, the city decided that it would be more cost effective to demolish and replace the existing center with a new one and renovate the site.

The project’s program prioritizes accessibility, visibility, and security, and maximizes street frontage, access to outdoor spaces and volumetric clarity. Key building elements include a 18,750-square-foot gymnasium featuring a high school basketball court with four side-courts and bleacher seating, a 2,000-square-foot auditorium, two multi-purpose rooms, a boxing center with a full-size ring, and a computer lab.

Site work encompasses the refurbishment of basketball courts, a new mini soccer field, landscaping, lawn, shade trees, paved walkways, lighting, seating, and bike racks.